项目位于深圳龙华区的住宅项目,开盘:项目于 2024 年 12 月 5 日取证入市,交房时间 2025 年 9 月 20 日精装交房,物业费为 5.3 元 /㎡/ 月,物业公司:深业物业,

建筑面积:约195960.00㎡物业类型:70年绿化率:约40%容积率:5.2总栋数:7栋总户数:1396户

位于深圳市龙华区红山片区,该片区经济发展态势良好,具有较强的经济活力和发展潜力,以下是具体介绍:
:根据 2021 年深圳 “十四五” 规划,“龙华中心” 被纳入都市核心区,红山片区作为龙华中心的高定中央生活区,区位优势显著。其毗邻约 960 万平方米的深圳北站总部基地,该基地商务总量比肩福田、南山,红山片区凭借 “北站商务中心 + 中央居住区” 的双重定位,成为龙华区行政、文化、商业资源最密集的片区之一。

:深圳北站商务区依托 “深圳北站”+“城市超核” 两大核心元素,在 “数字龙华,都市核心” 的发展战略下,致力于总部经济、金融服务、科技服务、文化服务等功能。当前已有担保集团、美团科技、华阳国际、深圳通、稳健医疗等总部企业入驻,总部经济集聚效应正加速形成,带动红山片区的进一步提升发展。

深圳市龙华区政府:红山片区商业配套成熟,拥有红山 6979、龙华天虹购物中心、华南第一家 Costco 华南会员旗舰店等多个大型商业体,年客流量高达 5262.3 万人次,销售额超 50 亿元,位居全市前列。这些商业体以多元业态融合为特色,满足了消费者购物、休闲、娱乐等多种需求,也为片区经济发展提供了强大动力。

:龙华红山重点发展人工智能、工业互联网、5G 和区块链技术,其目标是未来 5 年经济总量要达到 4500 亿元。联发臻著雅居所在的红山片区作为龙华核心资源最为集中的板块之一,将受益于这些产业的发展,迎来更多的发展机遇。

位于深圳龙华区红山中心区的高端住宅项目,其配套设施十分完善,以下是具体介绍:
:项目距离周边的 6 号线 号线 站可抵达深圳北站,可换乘 4/5/6 号线,快速前往福田、南山、宝安等地区。项目北侧为民塘路,周边有布龙路、上塘路等,自驾出行相对便捷。

:项目自带约 2000㎡商业,一路之隔是星河 COCO Garden 购物中心,距离天虹购物中心(龙华店)约 500 米,华南首家 Costco 距离约 700 米,距离红山 6979 商业中心约 1.3 公里,可满足居民的日常购物和消费需求。
:项目自带 1 所 6 班制幼儿园。根据 2024 年龙华区教育局学区划分,小学学区属龙华实验学校教育集团至真校区,初中学区为至美校区。另外,1 公里范围内还有民顺小学、民治中学、华东师范大学附属深圳龙华学校等,教学资源丰富。

:附近有龙华区人民医院、深圳市新华医院(建设中)两所三甲医院,以及深圳市第二儿童医院等,为居民健康提供保障。
:步行 1 公里范围内有深圳市第二图书馆、深圳美术馆新馆等重点文化场馆,还有简上体育综合体等体育设施,为业主提供了丰富的休闲健身选择。
:3 公里范围内覆盖阳台山森林公园等多个公园,项目附近还有北站中心公园、德逸公园等,为居民提供了优质的休闲环境。

主力户型涵盖 78-125㎡的 3-4 房,具有户型方正、户户朝南等特点,以下是对其部分户型的解读:
:属于经典竖厅格局,动静分离,卫生间干湿分离设计。整体户型方正,空间利用率高。东南朝向,采光和通风良好,主卧带有飘窗,增加了使用空间和采光效果。次卧一朝东,清晨阳光充足,且带有飘窗。不过,卧室二尺度较小,可能更适合作为儿童房或书房。

:同样是经典竖厅格局,动静分离,功能分区明确。次卧和客厅连接约 6 米超长阳台,采光和通风效果极佳,空间延展性好,可作为休闲观景或晾晒区域。03 户型为东南朝向,01/02 户型为西南朝向,户户朝南,采光充足。卫生间干湿分离设计,提高了使用效率。

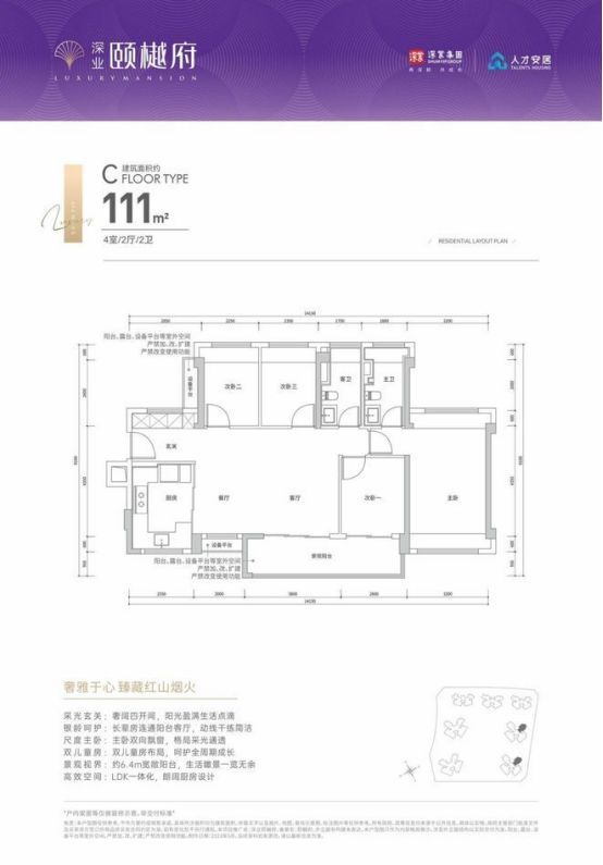
:采用横厅设计,餐客一体,空间开阔,有利于家庭成员的互动和交流,也方便家具的灵活摆放。客厅连接次卧出 6.4 米长的大阳台,增加了室内采光和通风,同时拓展了室内空间。主卧南北通透,面积约 19.26㎡,空间宽敞,居住舒适,且拥有良好的采光和通风。另外三个次卧面积分别为 8.8㎡、7.52㎡、7.2㎡,可满足不同的居住需求。厨房为 U 型设计,操作空间充足。

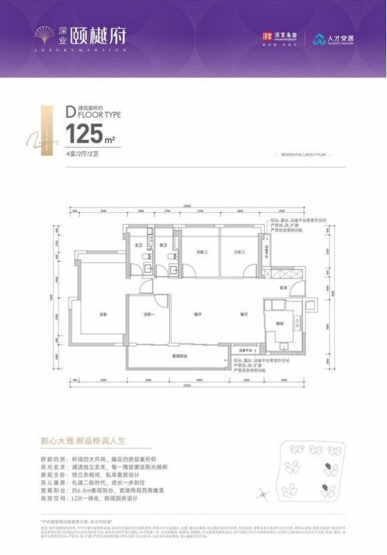
:横厅格局,是 111㎡户型的放大版,空间更加宽敞大气。客厅与次卧一连接约 6.9 米超长阳台,视野开阔,采光和通风极佳。主卧面积约 23.34㎡,空间宽敞舒适,带有 270 度景观飘窗,视野非常好。另外三个次卧面积分别为 9.18㎡、8.84㎡、8.68㎡,能满足不同居住需求。厨房为 U 型设计,操作方便,功能齐全。

楼盘成交价,优惠折扣找童经理申请:TZG12468本项目推广名为《深业颐樾府》,官方电线,以上所发布的关于楼盘相关图文信息仅供您买房前参考,以上所有关于本楼盘的图文资料及说明请以项目批文及双方在楼盘营销中心现场签署的买卖合同为准。
手术花了60多万,怎么会这么贵?西安交大第一附属医院被患者家属举报后,查出26项违规问题
女子称丈夫花8万元网购70平海景房,当地仍有多套起拍价1万的房型在售,中介:在乳山几万元能买房很正常
超远世界波无用!德比大战全场仅3射 英超9.2亿豪门1-4溃败3轮1分
约基奇44+13+7国王爆冷灭掘金终结8连败 威少21+6+11超传奇
俞敏洪深夜发全员信道歉,回应被叫“老登”,称“用员工血汗钱旅游”说法不妥